emilspec
An Integrated Publishing, Inc. Site
eMilSpec
An Integrated Publishing Website
Sockets, Wire Rope
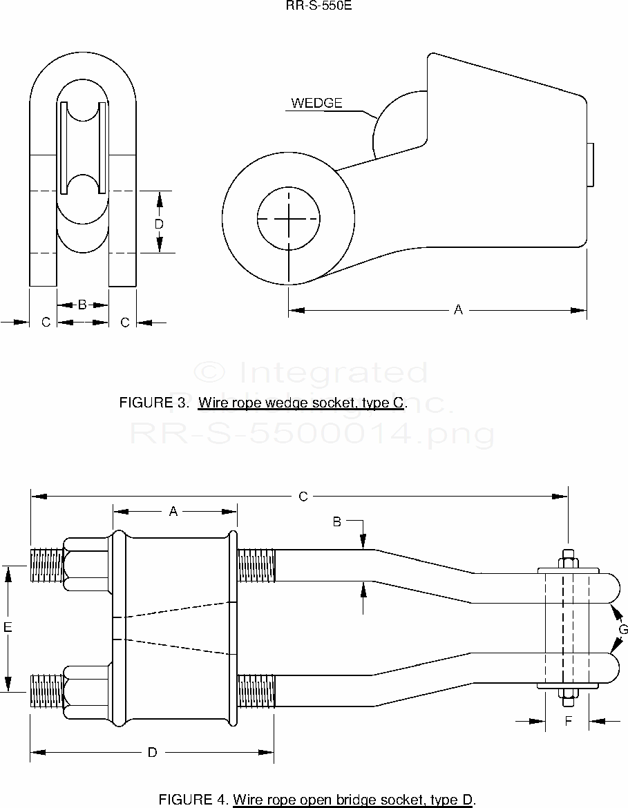
This specification covers mechanical sockets for mechanical wire ropes use in rigging, hoisting, towing, stowage excavating, logging and stump removing equipment, and marine applications.
For Parts Inquires call
Parts Hangar, Inc
(727) 493-0744
© Copyright 2015 Integrated Publishing, Inc.
A Service Disabled Veteran Owned Small Business